









Apartament cu 2 camere situat la etajul 1 al unei vile tip duplex cu doar 6 apartamente, în cadrul complexului Salciei Residence, o alegere ideală pentru cei care caută liniște, intimitate și o locație excelentă.
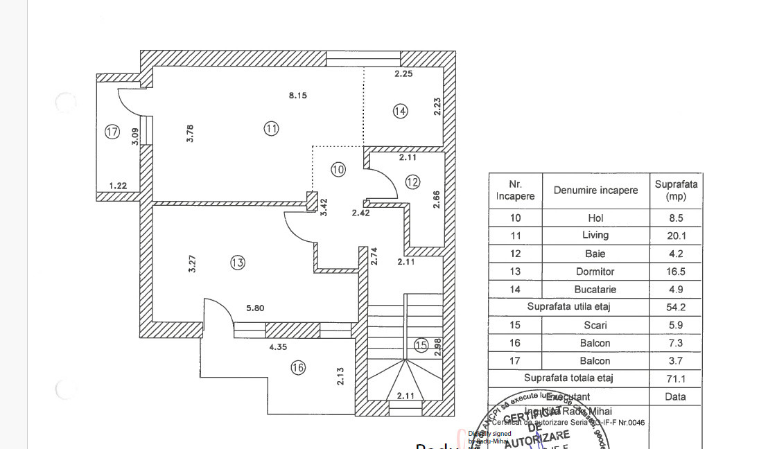
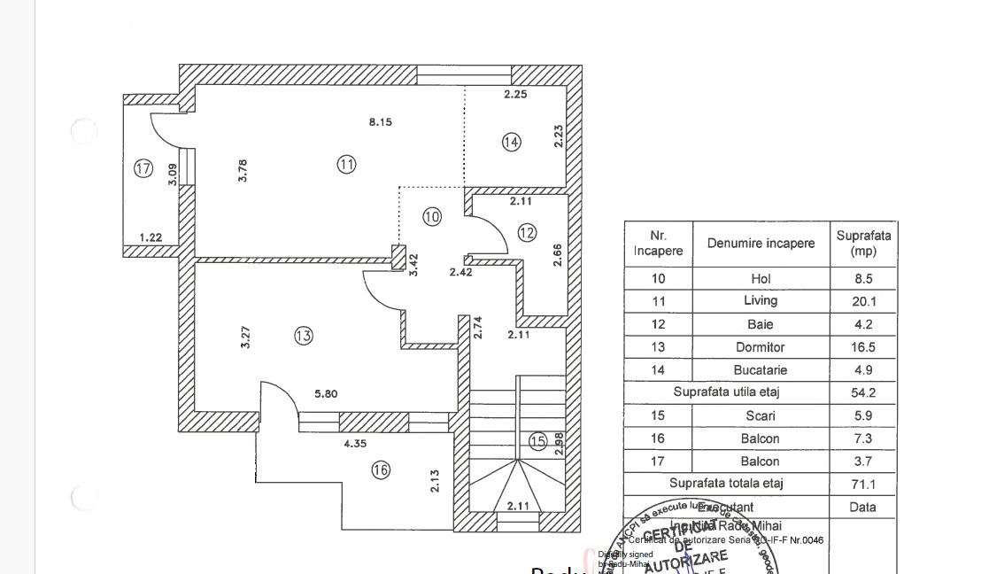
Suprafata utila totala: 65.2 mp / Pret 80.000 Euro + Tva
Locuința se află chiar vizavi de Parcul Bragadiru, într-o zonă aerisită, cu multă verdeață, perfectă pentru relaxare și activități în aer liber.
Avantaje:
Număr redus de apartamente în complex, ceea ce asigură intimitate și o comunitate restrânsă
Fiecare apartament beneficiază de un loc de parcare în imediata apropiere
Drum asfaltat și iluminat public în interiorul complexului
Racordare completă la toate utilitățile publice: apă curentă, canalizare, rețea de gaz și curent electric
Apartamentul se predă finisat complet:
Centrală termică proprie
Încălzire în pardoseală
Gresie, faianță, parchet
Obiecte sanitare montate, uși interioare și ușă metalică la intrare
Construcția este realizată pe structură de beton armat, cu compartimentări din cărămidă și placă de beton peste fiecare nivel. Pentru vilele duplex, peretele dintre unități este dublu, cu diafragmă și izolație cu polistiren între pereți, ceea ce oferă o bună izolare fonică și termică.
Se ofera consultanta de specialitate pentru accesarea oricarei forme de credit bancar.